Create Your First Project
Start adding your projects to your portfolio. Click on "Manage Projects" to get started
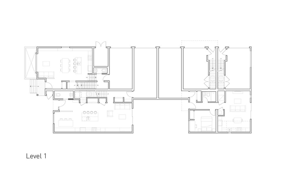
Mosaic5
Project Type
Infill Fast-Track Design
Date
2024
Location
Kelowna, BC, Canada
FAR
0.77
Number of Units
4 and 5
Award
Second Place Winner in the Kelowna Infill Design Challenge 2.0
Titled Mosaic, the concept imbues the character of its competition winning infill design, providing a collective of ground-oriented dwellings nestled under a contiguous form. The project responds to the challenge to increase urban density in established neighbourhoods without the presence of rear laneways.
At its heart, Mosaic challenges what has become an all too typical recipe for infill housing. Where common solutions follow repetitive floorplates, this project seeks to widen its audience through diversity of unit types and sizes. Characterized by splitting the front and rear massing, the design mimics that of a single-family dwelling with carriage home, situated along a common, ribbon strip drive aisle. Private garages form a spine along this aisle, sheltering private outdoor living while offering necessary storage for inhabitants. Along the frontage, vegetation serves as a buffer between public and private spaces without the need for fencing or barriers.
The architecture was inspired by the farmstead vernacular of the region offering a timeless integration within its context through playful gabled rooflines, simplistic forms and natural textures. The variation of building height and density demonstrates sensitivity and restraint given recent zoning changes and illustrates the balance of living needs with attainability. Mosaic is a carefully considered, middle housing solution aimed at a diverse, and multigenerational audience.




























